Projekt általános adatai
Az Al Waleed W.S 1 egy kifinomult lakófejlesztés Dubaj Land Residence Complex (DLRC) szívében, amelyet az Al Waleed Group és a Royal Tiara Real Estate életre hívott. Nyugodt építészeti tervezésével, semleges színeivel és nyitott erkélyeivel a projekt a modern kifinomultság és egyszerűség érzését hozza össze. A Dubai Silicon Oasis közelében található, és kiváló közlekedési kapcsolatokkal rendelkezik a Dubai-Al Ain úton és az Oud Metha úton, így a fejlesztés a kényelem és a stratégiai érték szempontjából is ideális.
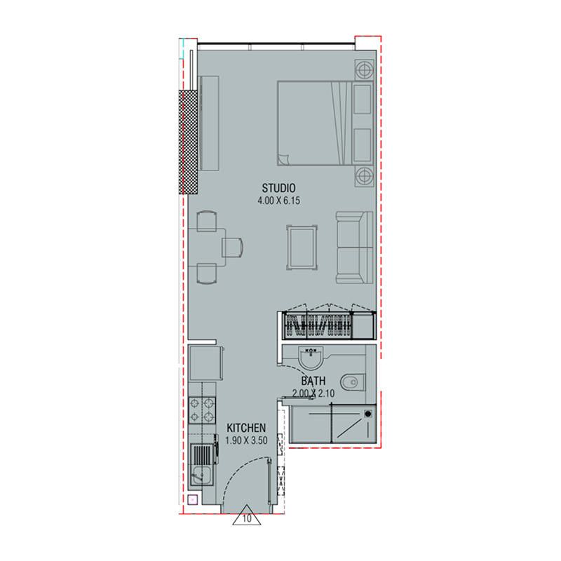
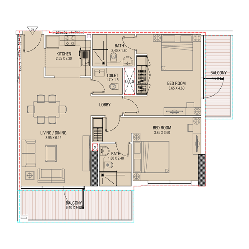
A projekt egy válogatott stúdiókat, 1 hálószobás és 2 hálószobás lakásokat kínál, mindegyik a harmónia és a szándék jegyében készült. Ezek az otthonok a természetes fényt, a tágas elrendezéseket és az időtlen befejezéseket helyezik előtérbe. A beépített szekrényektől a stílusos konyhákig minden belső tér a funkcionalitást tükrözi, eleganciába burkolva olyan lakóélményt teremtve, amely egyszerre nyugodt és stabil.
Az Al Waleed W.S 1 több mint egy lakóhely egy közösség, amelyet átgondolt terek, prémium kivitelezés és wellness-orientált design gazdagít. A fedett parkolónak, a körzeti hűtésnek és az energiatakarékos világításnak köszönhetően a lakók a kényelem és a fenntarthatóság életstílusát élvezhetik. Ideális mind a lakástulajdonosok, mind a befektetők számára, a fejlesztés a békés környezetet ötvözi a magas megtérülési potenciállal Dubaj egyik leggyorsabban fejlődő területén.
Befejezés és anyagok
Modern befejezés magas minőségű anyagok felhasználásával.
Konyha és gépek
Felszerelt konyhák asztalos munkával.
Bútorozás
Félbútorozott lakások beépített szekrényekkel.
Helyszín leírása és előnyök
A Dubai Land Residence Complex (DLRC) egy hatalmas és sokszínű közösség Dubajban, amely számos szórakozási, kikapcsolódási és lakóhelyi lehetőséget kínál. Ez a vibráló közösség széleskörű látnivalóiról és élményeiről ismert, így egyedülálló úti cél, amely minden korosztály számára vonzó.
A Dubai Land Residence Complex (DLRC) szívében világszínvonalú szórakoztató és kikapcsolódási helyszínek széles választéka található. A közösség számos vidámparknak ad otthont, köztük a Dubai Parks and Resorts-nak, amely magában foglalja a Legolandot, a Motiongate-ot, a Bollywood Parkokat és a Legoland Water Park lenyűgöző vízi élményét. Ezek a látnivalók végtelen szórakozást és élményt nyújtanak a családok számára, emlékezetes pillanatokat teremtve a gyerekek és felnőttek számára egyaránt.
A Dubai Land Residence Complex (DLRC) emellett számos sportlétesítménnyel és szabadtéri hellyel büszkélkedhet, amelyek a sportkedvelők és az aktív életmódot keresők igényeit szolgálják ki. A közösség híres golfpályáknak, teniszpályáknak, kerékpárutaknak és tágas parkoknak ad otthont, lehetőséget biztosítva a szabadtéri tevékenységekre és a szabadidős elfoglaltságokra.
Completion date
FEB 2027
Status
On sale
Types
Apartments
Location
Dubai Land Residence Complex (DLRC), United Arab Emirates

Al Waleed