Projekt általános tények
Az Eden a Sobha Centralnál a modern városi élet csúcspontjaként emelkedik ki, elegánsan a Dubai ikonikus Sheikh Zayed úton. Stratégiai elhelyezkedésének köszönhetően, amely a munka, a szórakozás és a kultúra kereszteződésében található, ez az építészeti csoda nem csupán lakóhelyet kínál – hanem egy dinamikus életstílusra hívja a lakókat, ahol a város energiája a mindennapi élet részévé válik. Sleek dizájnjával és panorámás városképi kilátásaival az Eden a Sobha Centralnál az elegancia és az ambíció tökéletes egyensúlyát testesíti meg.
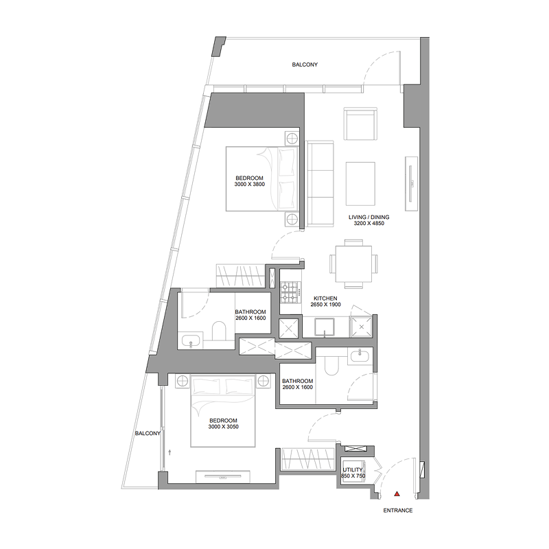
Az Eden a Sobha Centralban található lakások a kifinomult dizájn mesterművei, olyan elrendezésekkel, amelyek maximálisan kihasználják a természetes fényt és a teret, ízléses befejezésekkel, amelyek ötvözik a formát és a funkciót. A padlótól a mennyezetig érő ablakok lélegzetelállító kilátást nyújtanak a városra és a tájolt podiumkertekre, míg a belső terek visszafogott luxust sugároznak. Minden otthon egy privát szentély, amelyet azok számára terveztek, akik a szépséget keresik minden részletben és a kényelmet minden sarokban.
A lakók széleskörű szolgáltatásokhoz férhetnek hozzá, amelyek a mindennapi élet gazdagítására lettek tervezve – a bevásárlóközponttól, moziktól és fitnesz stúdióktól kezdve a közösségi irodákon, wellness központokon és nyugodt zöld területeken át. A családok élvezhetik a vibráló gyermekjátszótereket, míg a felnőttek a spa zónákban, grillező pavilonokban, egy szabadtéri amfiteátrumban és egy putting greenen pihenhetnek. Az Eden a Sobha Centralnál nem csupán lakóhely – hanem egy teljes mértékben megvalósult életstílus célpont, ahol a kifinomultság és a nyugalom zökkenőmentesen együtt él.
Befejezés és anyagok
Modern befejezés, magas minőségű anyagokkal.
Konyha és készülékek
Felszerelt konyhák.
Bútorozás
Nem.
Helyszín leírása és előnyök
A Discovery Gardens egy vibráló és jól kiépített lakóközösség Dubajban, amely gazdag zöld tájaival, tágas elrendezéseivel és megfizethető, mégis stílusos lakhatási lehetőségeivel ismert. A Sheikh Zayed út és az Emirates út között elhelyezkedve gyors hozzáférést biztosít a lakóknak olyan kulcsfontosságú helyszínekhez, mint a Dubai Marina, a Jumeirah Lake Towers (JLT) és az Ibn Battuta Mall, így stratégiai helyszín a munka és a szórakozás számára egyaránt.
A terület különféle, kertiházak ihlette lakóépületekkel rendelkezik, mindegyik zöldövezetekkel és sétányokkal körülvéve. Ez a békés környezet különösen vonzó a családok és fiatal szakemberek számára, akik nyugalmat keresnek a városban. A környék erős közösségi érzést kínál, számos szabadtéri térrel, játszóterekkel és mindennapi szolgáltatásokkal, mindössze néhány lépésnyire az otthontól.
A közeli Discovery Gardens metróállomás a 2020-as vonal meghosszabbításán található, így a lakók zökkenőmentes kapcsolatot élveznek az Expo City Dubai-val és a metróhálózat többi részével. Akár ingázik, vásárol, vagy felfedezi a várost, a Discovery Gardens a külvárosi élet kényelmét kínálja a városi hozzáférés kényelmével.
Completion date
Q4 2029
Status
On sale
Types
Apartments
Location
Discovery Gardens, United Arab Emirates

Sobha